なんば駅徒歩約5分!/事務所仕様/6階店舗//BS232
イチオシ特選物件人気エリア
- 物件情報
-
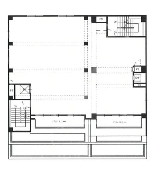
所在地 大阪市浪速区日本橋西1 近隣駅1 大阪メトロ堺筋線 恵美須町駅 徒歩約6分 近隣駅2 大阪メトロ御堂筋線・千日前線・四つ橋線 なんば駅 徒歩約10分 坪数 約49.84坪 賃料(税込) 440,000円 共益費(税込) 82,500円 敷金 2,400,000円 礼金(税込) 880,000円 前(現)業種 事務所 所在階 6階店舗 おすすめ業種 美容室 / 理容室 / エステサロン / ネイルサロン / アイラッシュサロン / クリニック / 各種スクール / ジム・フィットネス
- 事務所仕様
- 駅チカ
- 3階以上
- 美容室・理容室
- エステサロン
- その他
この物件のお問合せはこちらから!
この物件を担当に問い合わせる - お電話にて物件IDをお伝えください。
06ー6881ー8100平日10:00-19:00 日祝除く
南海電鉄本線・高野線「なんば」駅から徒歩約5分!
大阪メトロ堺筋線「恵美須町」駅からも徒歩約6分!
大阪メトロ御堂筋線・千日前線・四つ橋線「なんば」駅からも徒歩約10分!
2沿線以上が利用可能な交通アクセス至便立地!
事務所仕様の6階店舗です♪♪
45坪越えの広々とした室内です。
ワンフロア貸しのため、隣室を気にせずに営業できますよ♪
共用部リニューアル工事実地しています。
美容室やエステなどの美容サロン、各種スクール、フィットネスジムetc.
業種・業態について、まずはご相談くださいね!
内覧をご希望の方は必ず事前のご予約をお願いいたします。
その他詳細もお気軽にお問い合わせくださいませ。
お待ちしております♪
■定期借家契約:期間10年(期間相談可)
■24時間利用可能
■保証会社加入要(指定有)
■火災保険加入要
- 成約済みや貸主様のご都合で取引条件の変更がある場合がございます。 まずはお問い合わせください。
