東三国駅徒歩約4分!/美容室居抜き/1階路面店舗//BHT153
イチオシ特選物件
- 物件情報
-
所在地 大阪市淀川区東三国6 近隣駅1 JR東海道線 東淀川駅 徒歩約15分 近隣駅2 - 坪数 約25.82坪 賃料(税込) 330,000円 共益費(税込) 0円 敷金 900,000円 礼金(税込) 990,000円 前(現)業種 美容室 所在階 1階路面店舗 おすすめ業種 美容室 / 理容室 / ヘッドスパ / ネイルサロン / アイラッシュサロン
- 居抜き
- 路面
- 駅チカ
- 大通り
- 美容室・理容室
- エステサロン
- その他
この物件のお問合せはこちらから!
この物件を担当に問い合わせる - お電話にて物件IDをお伝えください。
06ー6881ー8100平日10:00-19:00 日祝除く
大阪メトロ御堂筋線「東三国」駅から徒歩約4分!
JR東海道線「東淀川」駅から徒歩約15分!
大通り(新御堂筋)沿いで視認性良好!
美容室居抜きの1階路面店舗です♪♪
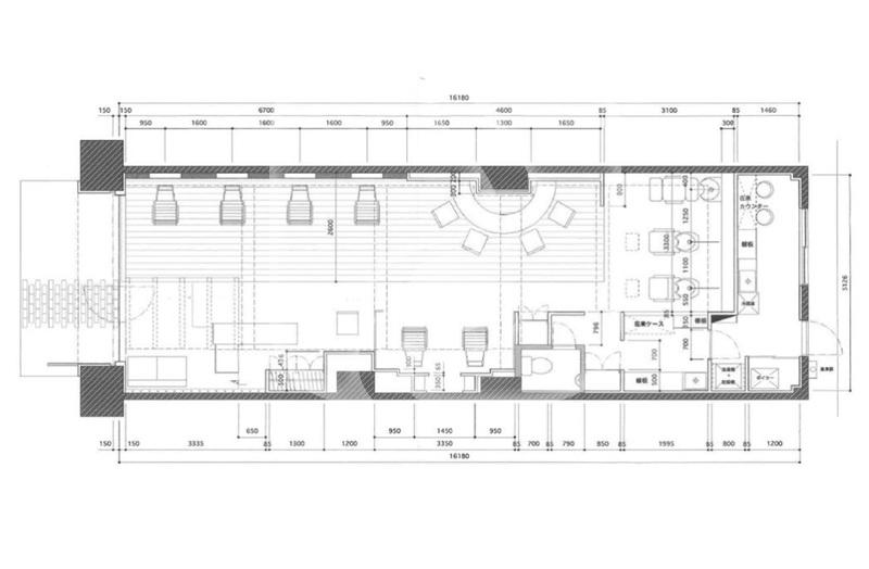
セット面6席、シャンプー台3台、受付カウンターのレイアウトです。
前面ガラス張りで外からでも店内の様子が見やすく、お客様が来店しやすい仕様です。
大通り沿いということもあり、交通量・人通りの多いエリアで
幅広い客層を狙える立地です。
新規オープンやリニューアル出店にもぴったりですよ♪
業種・業態について、まずはご相談くださいね!
内覧のご希望も承りますので、事前にご予約ください。
その他詳細もお気軽にお問い合わせくださいませ。
お待ちしております♪
■保証会社加入要(指定有)
■火災保険加入要(指定有)
- 成約済みや貸主様のご都合で取引条件の変更がある場合がございます。 まずはお問い合わせください。
