鳴尾・武庫川女子大前駅徒歩約5分!/美容室跡/1階路面店舗//BZ101
イチオシ特選物件
- 物件情報
-
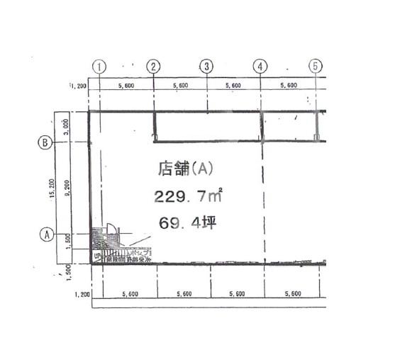
所在地 兵庫県西宮市里中町2 近隣駅1 - 近隣駅2 - 坪数 約69.4坪 賃料(税込) 528,000円 共益費(税込) 0円 保証金 0円 礼金(税込) 0円 前(現)業種 美容室 所在階 1階路面店舗 おすすめ業種 美容室 / 理容室 / エステサロン / ネイルサロン / アイラッシュサロン / マッサージ・リラクゼーション / ヨガ・ピラティス / ジム・フィットネス / アパレル・雑貨店 / ペットサロン
- 居抜き
- 路面
- 駅チカ
- 美容室・理容室
- エステサロン
- その他
この物件のお問合せはこちらから!
この物件を担当に問い合わせる - お電話にて物件IDをお伝えください。
06ー6881ー8100平日10:00-19:00 日祝除く
阪神電鉄本線「鳴尾・武庫川女子大前」駅から徒歩約5分!
角地で視認性良好!
美容室跡の1階路面店舗です♪♪
美容業種全般相談可能です。
間口の広さは約19.3mで、駐車スペース2台付です♪
美容室・理容室、エステなどの美容サロン、アパレル・雑貨店、
ヨガ・ピラティススタジオ、パーソナルジム、ペットサロンetc.
業種・業態について、まずは何なりとご相談くださいね!
内覧のご希望も承りますので、事前にご予約ください。
その他詳細もお気軽にお問い合わせくださいませ。
お待ちしております♪
■使用部分面積変更可(最大633㎥)
■保証会社加入要(指定有)
■火災保険加入要(指定有)
- 成約済みや貸主様のご都合で取引条件の変更がある場合がございます。 まずはお問い合わせください。
