天神橋筋六丁目駅徒歩約1分の駅近!/スケルトン/1階路面店舗//BU197
イチオシ特選物件人気エリア
- 物件情報
-
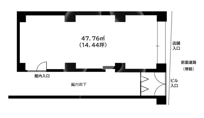
所在地 大阪市北区浪花町 近隣駅1 阪急電鉄千里線 天神橋筋六丁目駅 徒歩約1分 近隣駅2 JR大阪環状線 天満駅 徒歩約8分 坪数 約14.44坪 賃料(税込) 396,000円 共益費(税込) 41,250円 敷金 720,000円 礼金(税込) 1,188,000円 所在階 1階路面店舗 おすすめ業種 美容室 / 理容室 / ヘッドスパ / エステサロン / ネイルサロン / アイラッシュサロン / 整体・マッサージ・リラクゼーション / クリニック / 物販・事務所
- スケルトン
- 路面
- 駅チカ
- 大通り
- 美容室・理容室
- エステサロン
- その他
この物件のお問合せはこちらから!
この物件を担当に問い合わせる - お電話にて物件IDをお伝えください。
06ー6881ー8100平日10:00-19:00 日祝除く
大阪メトロ谷町線・堺筋線「天神橋筋六丁目」駅から徒歩約1分!
阪急電鉄千里線「天神橋筋六丁目」駅からも徒歩約1分!
JR大阪環状線「天満」駅からも徒歩約8分!
2沿線以上が利用可能な交通アクセス至便立地!
駅近で大通り沿いの好立地!
スケルトンの1階路面店舗です♪♪
美容業種全般ご相談可能です。
スケルトンのため、業態を問わず自由なレイアウトにできます。
(入口自動ドア・シャッター残置あり)
フリーレント2ヶ月付きで
これから新規出店や多店舗展開をご検討されている方にもおすすめ♪
人気の「天神橋筋商店街」至近!
業種・業態について、まずは何なりとご相談くださいね!
内覧のご希望も承りますので、事前にご予約ください。
その他詳細もお気軽にお問い合わせくださいませ。
お待ちしております♪
■フリーレント2ヶ月(2年以内の解約で違約金あり)
■給排水・ガス設備設置可能(排気ダクト・グリストラップ設置不可)
■24時間利用※専用カード要
■インターネット:建物まで光ケーブル導入済
利用は借主負担(申込が必要です)
■駐輪場:自転車のみ 2,200円(税込)
■ゴミ置場:廃棄物業者と直接契約
■電気基本料:23,007円(税込)
■袖看板費用:11,000円(税込)
■館内表札:実費
■保証会社加入要(指定有)
■火災保険加入要(指定有)
- 成約済みや貸主様のご都合で取引条件の変更がある場合がございます。 まずはお問い合わせください。
