柴原阪大前駅徒歩約9分!/事務所・店舗仕様/1階路面店舗//BX127 | 美容店舗紹介専門店 添縁 -Beauty- 美容・サロンの居抜きならお任せください
開業される方
開業スタイル
居抜き物件とは
開業資金について
開業までのスケジュール
店舗運営サポート
店舗を貸したい方
閉店・移転をお考えの方
開業したいお客様一覧
不動産の売買をお考えの方
成約実績のご紹介
コラム

サイトマップ プライバシーポリシー

お問い合わせ

ホームページに掲載できないシークレット物件も多数ございます。お気軽にお問い合わせください。

開業される方
お問い合わせ
店舗を貸したい方 閉店・移転をお考えの方
お問い合わせ
不動産の売買をお考えの方
お問い合わせ

お問い合わせダイヤル

ホームページに掲載できないシークレット物件も多数ございます。お気軽にお問い合わせください。

物件IDをお伝えください。
06-6881-8100 受付時間:10:00 - 19:00 (日祝除く)

柴原阪大前駅徒歩約9分!/事務所・店舗仕様/1階路面店舗//BX127
イチオシ特選物件

物件ID:BX127 大阪モノレール 柴原阪大前駅 徒歩約9分
物件情報
所在地 大阪府豊中市桜の町1
近隣駅1 阪急電鉄宝塚線 豊中駅 徒歩約15分
近隣駅2 -
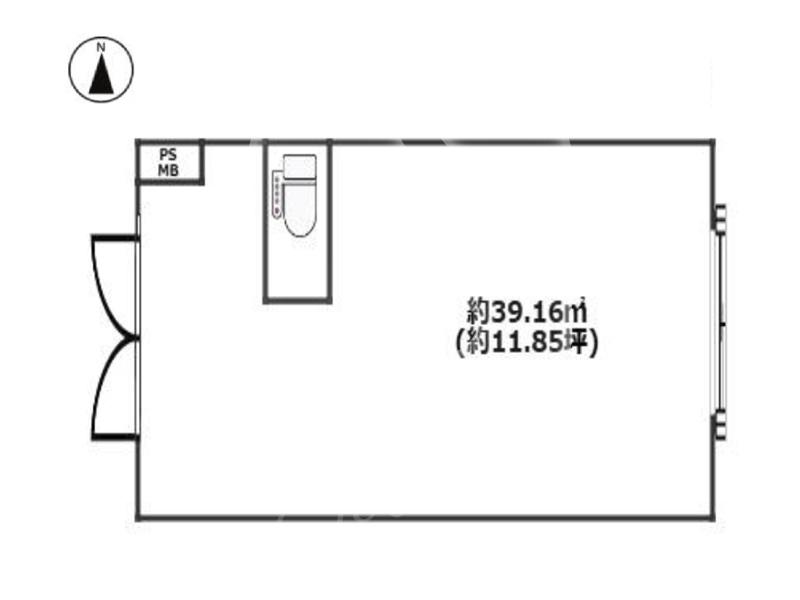
坪数 約11.85坪
賃料(税込) 143,000円
共益費(税込) 0円
敷金 0円
礼金(税込) 143,000円
所在階 1階路面店舗
おすすめ業種 ネイルサロン / アイラッシュサロン / エステサロン / マッサージ・リラクゼーション / ジム・フィットネス / ヨガ・ピラティス / フォトスタジオ / レンタルスペース / 事務所
  • 事務所仕様
  • 路面
  • 駅チカ
  • エステサロン
  • その他

この物件のお問合せはこちらから!

この物件を担当に問い合わせる
お電話にて物件IDをお伝えください。
06ー6881ー8100平日10:00-19:00 日祝除く

大阪モノレール「柴原阪大前」駅から徒歩約9分!

阪急電鉄宝塚線「豊中」駅からは徒歩約15分!

府道43号線に面したマンションで視認性良好!

約11.85坪の独立開業にもおすすめの広さです。

フルリノベーション済みの美装内装で

ネイルやエステなどの美容サロン、マッサージ・リラクゼーション、

プライベートフィットネス、ヨガスタジオ、レンタルスペースや事務所etc.

業種・業態について、まずはご相談くださいね!

周辺でもマンションや戸建てなど住居が多く、幅広い年齢層が暮らすエリアで

地域密着型の営業をご検討の方にもおすすめですよ♪

内覧のご希望も承りますので、事前にご予約ください。

※1月中のお申込に限り、2月分賃料フリーレント可能です!

その他詳細もお気軽にお問い合わせくださいませ。

お待ちしております♪

■トイレ・メールBOX

■テナント案内板あり(作成費が別途必要です)

■保証会社加入要(指定有)

■火災保険加入要(指定有)

  • 成約済みや貸主様のご都合で取引条件の変更がある場合がございます。 まずはお問い合わせください。
この物件を担当に問い合わせる
06ー6881ー8100平日10:00-19:00 日祝除く